Jesús Tejedor, socio 386 de ASA, nos presenta su proyecto para una cabaña basada en palés reciclados, con gran versatilidad mediante una edificación de baja energía incorporada en la que se reducen los impactos derivados de los materiales de construcción. Se basa en un sistema en el que se realizan muros y cubiertas con palés que conforman parte de un sistema de membrana o muro de carga ligero en combinación de la madera aserrada. Se consiguen secciones resistentes considerables usando muy poca madera aserrada, que funciona también como conector de los propios palés. Las soleras también se realizan con palés, sin ningún fin estructural.
EL PROTOTIPO:
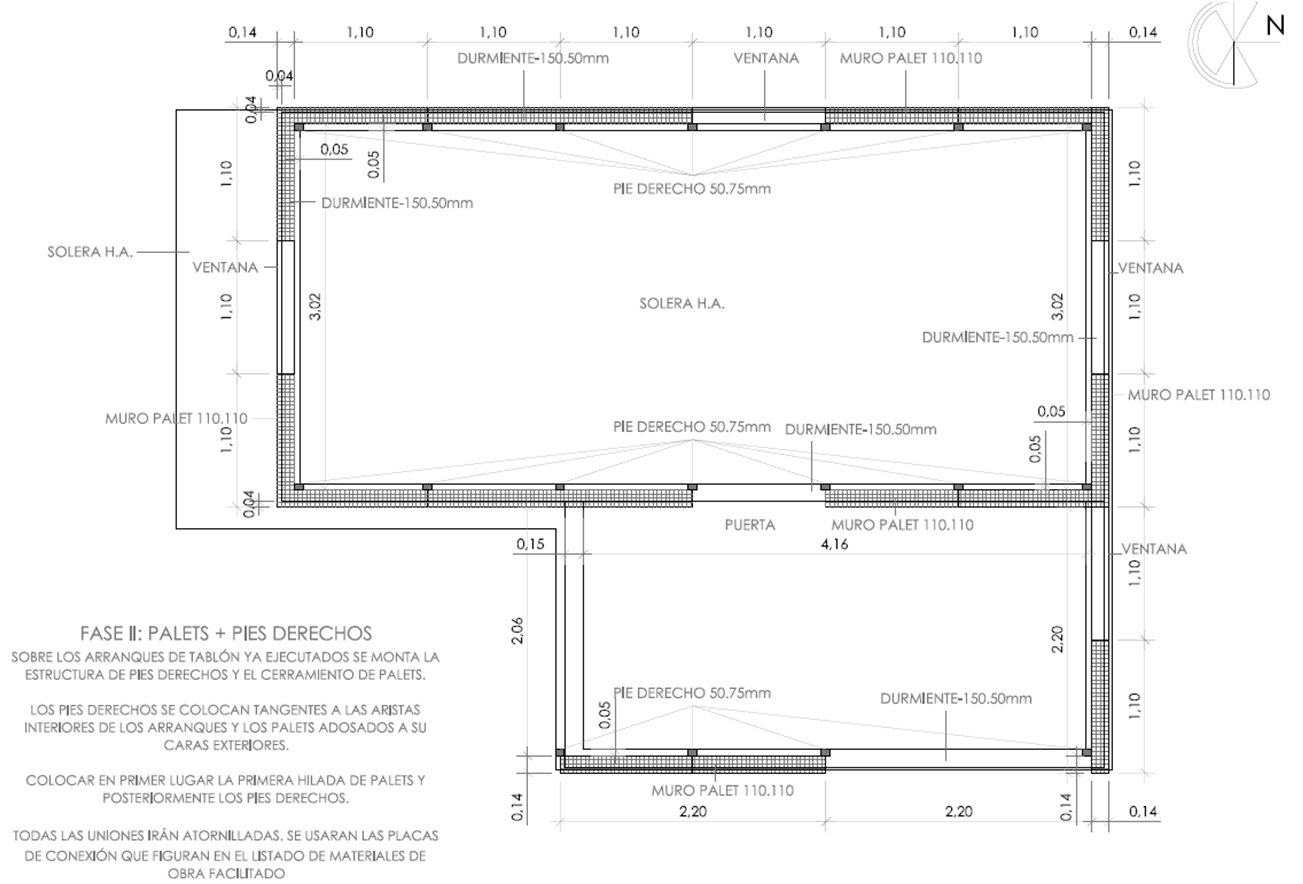
Se ha realizado un prototipo en Villalar de los Comuneros, por encargo del Ayuntamieento. La construcción es geométricamente muy sencilla, dos cuerpos rectangulares adosados entre sí. El primero en un porche de acceso, cubierto y abierto, rectangular y con la cubierta a dos aguas. Protege el acceso al refugio. Este segundo volumen es también rectangular y con su cubierta a dos aguas y uno de sus faldones está colocado en continuidad con el del porche.
Las superficies útiles y construidas son las siguientes:
| SUPERFICIES UTILES CABAÑA | |||
| Refugio | 17,69 | m² | |
| Porche | 7,44 | m² | |
| Total | 25,13 | m² | |
| SUPERFICIE CONSTRUIDA CABAÑA | |||
| Total | 30,12 | m² | |
La edificación se orienta para que su porche esté bien soleado en invierno y sombreado en verano, sus dos aperturas se orientan al este y sur respectivamente.
LOS GRADOS DE ADAPTACIÓN:
– Adaptación a los materiales reciclados existentes: si bien los materiales principales son los palés reciclados y la madera aserrada, el resto de materiales de la envolvente pueden ser muy variados, aprovechando los materiales reciclados disponibles en cada momento y en cada lugar.
– Adaptación a las necesidades de tamaño y diseño: Modularidad y libertad de composición. Algunos ejemplos.
– Adaptación al clima: las soluciones de cerramiento y cubierta, si bien se basan siempre en la creación de diafragmas compuestos de palés y pequeñas escuadrías de madera, pueden diferir en función de la severidad climática. En climas tropicales pueden incluso dejarse desnudos, mientras que en climas fríos es preciso rellenarlos de aislamiento, impermeabilizarlos, hacerlos estancos y dotarlos de barrera de vapor. El sistema modular también permite cambiar la posición y tamaño de los huecos, permitiendo diseños bioclimáticos muy versátiles.
– Adaptación al uso: tanto pueden ser cabañas de montaña como de playa, casetas de aperos, viviendas provisionales o refugios de emergencia. Una virtud del sistema es que su simplicidad permite la autoconstrucción.



